/app/uploads/2023/11/DSC_6669-scaled.jpg
Omschrijving
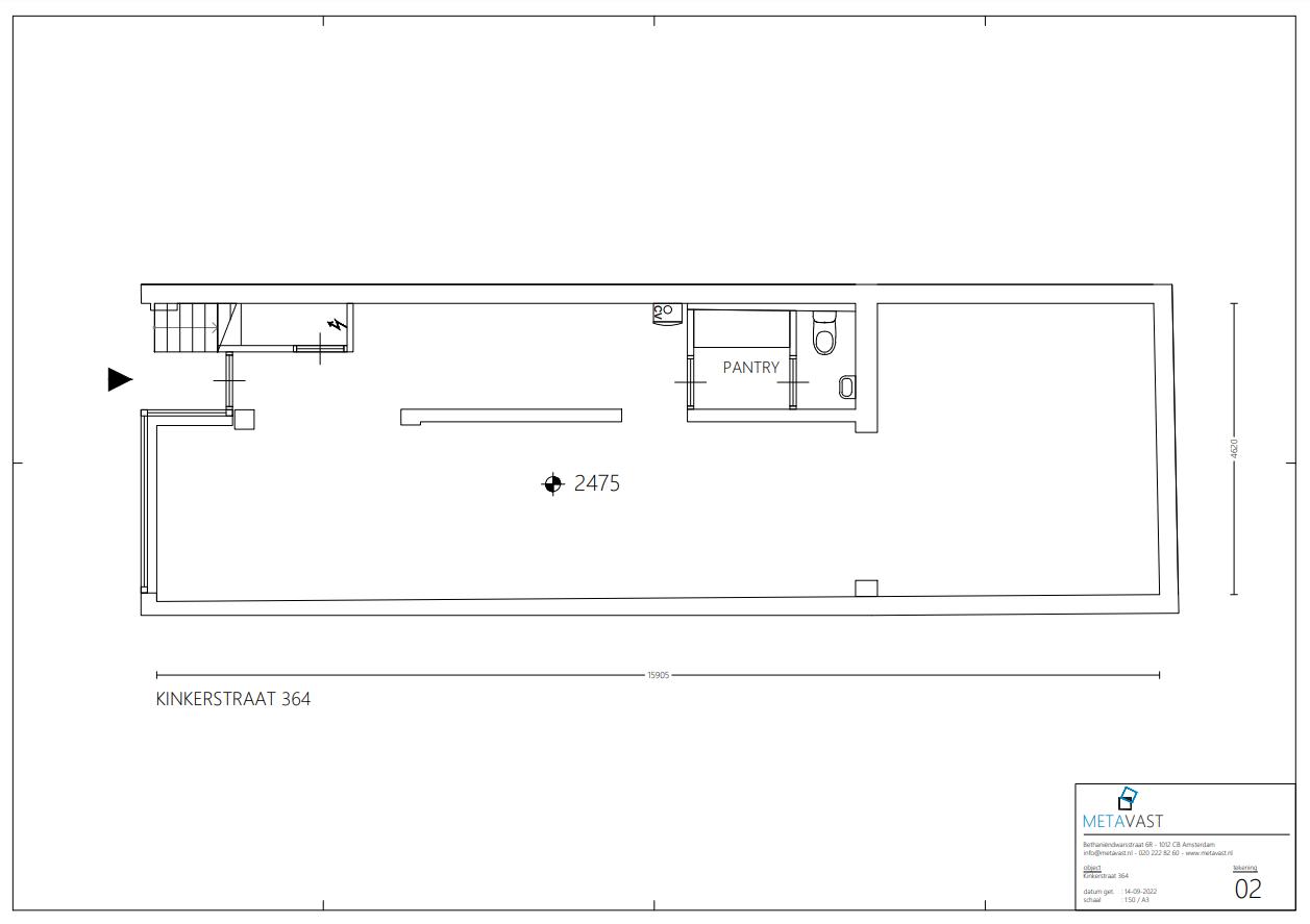
Gerenoveerde (2022) winkelruimte van circa 79 m² BVO. De winkel is gelegen in een populair winkelgebied nabij De Hallen, de Overtoom en het Centrum van Amsterdam. Het object heeft energielabel A. VLOEROPPERVLAKTEN - circa 79 m² verhuurbare vloeroppervlakte (BVO) - circa 69 m² bruto vloeroppervlakte (VVO) Meetrapport is beschikbaar. LOCATIE Het object is gelegen in Amsterdam West (voorheen stadsdeel Oud West) en nagenoeg op de hoek met de Jan Pieter…

Gerenoveerde (2022) winkelruimte van circa 79 m² BVO. De winkel is gelegen in een populair winkelgebied nabij De Hallen, de Overtoom en het Centrum van Amsterdam. Het object heeft energielabel A.

VLOEROPPERVLAKTEN
- circa 79 m² verhuurbare vloeroppervlakte (BVO)
- circa 69 m² bruto vloeroppervlakte (VVO)

Meetrapport is beschikbaar.

LOCATIE
Het object is gelegen in Amsterdam West (voorheen stadsdeel Oud West) en nagenoeg op de hoek met de Jan Pieter Heijestraat. De gezellige Kinkerstraat biedt een diversiteit aan winkels, (lunch)cafés en koffietenten. Hotspot “De Hallen” is een begrip in de omgeving: gezellig borrelen, lunchen of dineren, naar de bioscoop, de kapper of de bieb, het kan allemaal in deze voormalige, verbouwde en monumentale tramremise. Verder is deze wijk grenzend aan de Jordaan en daarmee aan het gehele Centrum. De Overtoom is tevens nabij en deze sluit aan op het welbekende Vondelpark. Om de hoek ligt de wijk “Jan Eef”, een eveneens hippe buurt die ondertussen vele trendy cafeetjes en restaurants biedt (o.a. Zurich, Barbaarsch & Barspek).

De bereikbaarheid is uitstekend met diverse uitvalswegen en openbaar vervoerverbindingen in de directe omgeving.

BESTEMMINGSPLAN
Bestemmingsplan Oud West 2018 geeft de bestemming Gemengd – 1.

FUNCTIEMOGELIJKHEDEN
- detailhandel, niet zijnde supermarkt, inclusief bijbehorende ondergeschikte horeca;
- consumentverzorgende dienstverlening;
- publieksgerichte zakelijke dienstverlening.

Ondergeschikte horeca
Uitsluitend zijnde horeca van categorie 3 en horeca van categorie 4 die wordt of is gerealiseerd binnen een andere hoofdfunctie en daar naar oppervlakte en ruimtelijke uitstraling ondergeschikt aan is, met dien verstande dat in geval van ondergeschikte horeca in detailhandel, maximaal 20% van de verkoop vloeroppervlakte van de winkel tot maximaal 20 m² voor ondergeschikte horeca gebruikt mag worden.

PARKEREN
Betaald parkeren op de openbare weg of door middel van vergunningensysteem.

OMZETBELASTING
21% omzetbelasting van toepassing.

HUURPRIJSAANPASSING
Jaarlijks, op basis van het Consumenten Prijs Indexcijfer (CPI), reeks Alle Huishoudens (2015=100) verhoogd met een opslag van 2% en voor het eerst één jaar na de huuringangsdatum.

HUURTERMIJNEN
In overleg.

ZEKERHEIDSSTELLING
Huurder dient een bankgarantie of waarborgsom te stellen ter grootte van minimaal 3 maanden huur.

BIJZONDERHEDEN
- Totale oppervlakte van circa 79 m² (meetrapport is beschikbaar);
- Gerenoveerd in 2022 (o.a. nieuw sanitair & elektra, wanden en plafonds glad gestuct);
- Energielabel A;
- Huurprijs exclusief G/W/L te vermeerderen met BTW;
- Populaire ligging in een drukke winkelstraat nabij het Centrum van Amsterdam;
- Uitstekende bereikbaarheid met openbaar vervoer en de auto.

Renovated (2022) retail space of approximately 79 m² GFA. The store is located in a popular shopping area near De Hallen, the Overtoom and the Center of Amsterdam. The object has energy label A.

FLOOR SURFACES
- approx. 79 m² lettable floor area (LFA)
- approximately 69 m² gross floor area (GFA)

Measurement report is available.

LOCATION
The object is located in Amsterdam West (formerly the Oud West district) and almost on the corner with Jan Pieter Heijestraat. The cozy Kinkerstraat offers a variety of shops, (lunch) cafés and coffee shops. Hotspot "De Hallen" is a household name in the area: cozy drinks, lunch or dinner, going to the cinema, the hairdresser or the library, it's all possible in this former, renovated and monumental tram depot. Furthermore, this district is adjacent to the Jordaan and therefore to the entire Center. The Overtoom is also nearby and connects to the well-known Vondelpark. Around the corner is the "Jan Eef" district, an equally hip neighborhood that now offers many trendy cafes and restaurants (including Zurich, Barbaarsch & Barspek).

The accessibility is excellent with various roads and public transport connections in the immediate vicinity.

DESTINATION PLAN
Zoning plan Oud West 2018 gives the destination Mixed – 1.

FEATURES
- retail, not being a supermarket, including associated subordinate catering;
- consumer care services;
- public-oriented business services.

Subordinate catering
Exclusively being catering in category 3 and catering in category 4 that is or has been realized within another main function and is subordinate to it in terms of surface area and spatial appearance, on the understanding that in the case of subordinate catering in retail, a maximum of 20% of the sales floor area of the shop up to a maximum of 20 m² may be used for subordinate catering.

PARKING
Paid parking on public roads or through a permit system.

SALES TAX
21% sales tax applies.

RENTAL PRICE ADJUSTMENT
Annually, based on the Consumer Price Index (CPI), series All Households (2015=100) increased with a surcharge of 2% and for the first time one year after the rental commencement date.

RENTAL TERMS
In consultation.

GUARANTEE
The tenant must provide a bank guarantee or deposit amounting to at least 3 months' rent.

PARTICULARITIES
- Total area of ??approximately 79 m² (measurement report is available);
- Renovated in 2022 (including new plumbing & electricity, smooth plastered walls and ceilings);
- Energy label A;
- Rental price excluding G/W/E plus VAT;
- Popular location in a busy shopping street near the center of Amsterdam;
- Excellent accessibility by public transport and car.

Lees meerLees minder
Kenmerken
Overdracht
  • Huurprijs € 2.300,- per maand
  • Servicekosten -
  • BTW van toepassing Ja
Indeling
  • Oppervlakte totaal ca. 79 m2
  • Oppervlakte winkel ca. 79 m2
Energie
  • Energielabel A
Bouwvorm
  • Hoofdfunctie Winkelruimte
  • Soort bouw Bestaande bouw
  • Bouwjaar 1902
  • Frontbreedte 300 cm
Overig
  • Onderhoud binnen Goed tot uitstekend
  • Onderhoud buiten Goed
Bekijk alle kenmerken Bekijk minder kenmerken
Plattegronden
Direct contact

Vul onderstaand formulier in en wij nemen zo snel mogelijk contact op.

    Contactgegevens