Beschikbaar

Eerste Helmersstraat 53 3

1054 db Amsterdam

Unieke kans om jouw droomwoning te realiseren op een toplocatie de Helmersbuurt! Deze bovenwoning meet circa 59 m² met een zonnig balkon van circa 4 m² pal op het zuiden. lees meer

  • 59m²
  • 2 slaapkamers

€ 525.000 ,- k.k.

/app/uploads/2023/11/DSC_6669-scaled.jpg
Omschrijving

Unieke kans om jouw droomwoning te realiseren op een toplocatie de Helmersbuurt! Deze bovenwoning meet circa 59 m² met een zonnig balkon van circa 4 m² pal op het zuiden. Er is sprake van eigen grond.

INDELING
Gemeenschappelijk trappenhuis. Entree van de woning is op de derde verdieping.

Derde verdieping
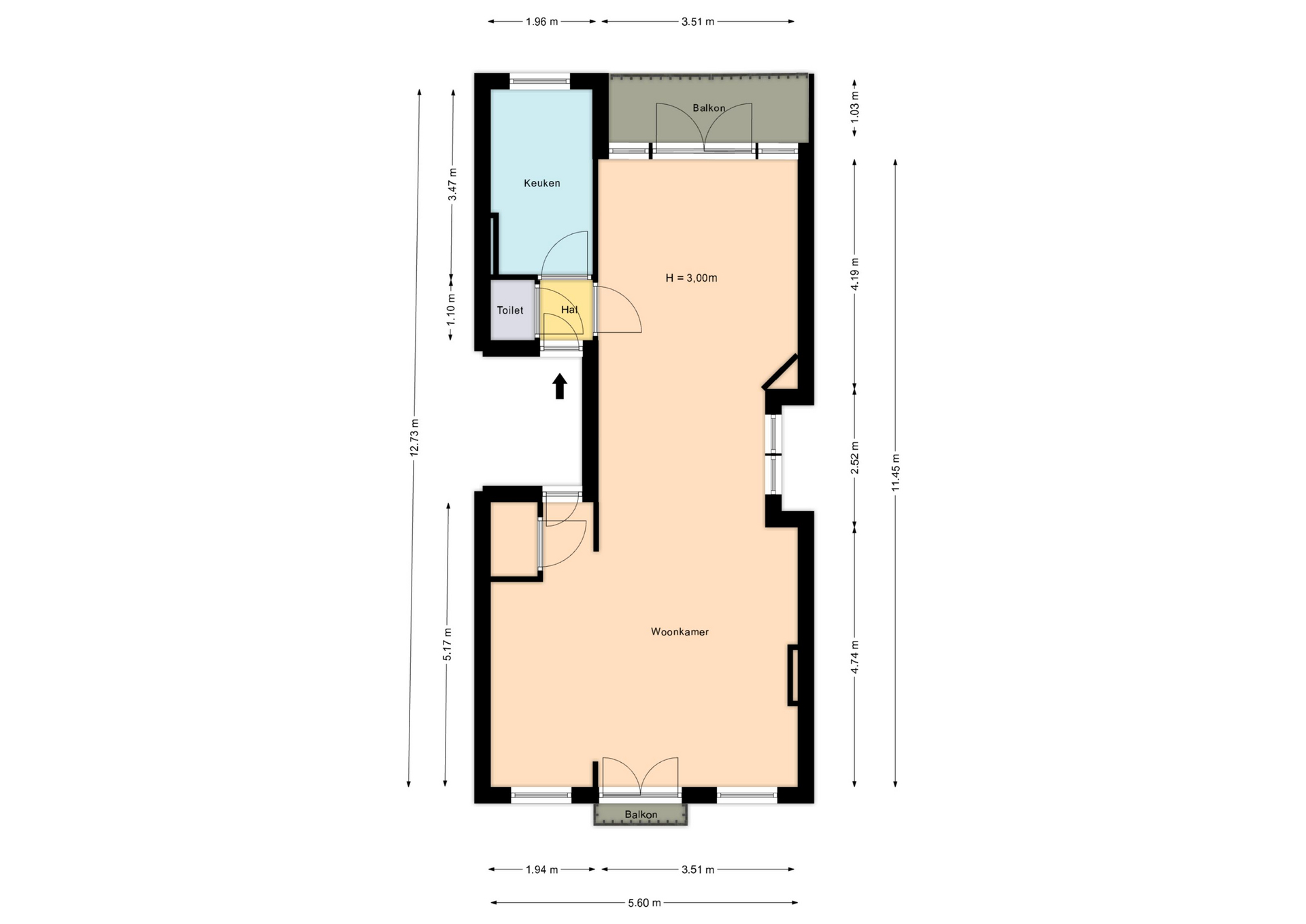
Casco ruimte met (Frans) balkon aan de voorzijde, lichthof centraal in de woning en een zonnig balkon van circa 4 m² aan de achterzijde.

Voor een mogelijke indeling met o.a. 2 slaapkamers verwijzen wij graag naar de alternatieve plattegrond.

LIGGING & BEREIKBAARHEID
Het object…

Unieke kans om jouw droomwoning te realiseren op een toplocatie de Helmersbuurt! Deze bovenwoning meet circa 59 m² met een zonnig balkon van circa 4 m² pal op het zuiden. Er is sprake van eigen grond.

INDELING
Gemeenschappelijk trappenhuis. Entree van de woning is op de derde verdieping.

Derde verdieping
Casco ruimte met (Frans) balkon aan de voorzijde, lichthof centraal in de woning en een zonnig balkon van circa 4 m² aan de achterzijde.

Voor een mogelijke indeling met o.a. 2 slaapkamers verwijzen wij graag naar de alternatieve plattegrond.

LIGGING & BEREIKBAARHEID
Het object ligt in de populaire en centrale Helmersbuurt in het bruisende Oud West. Het Leidseplein, het Vondelpark, winkels, terrassen en restaurants op de Overtoom en de Kinkerstraat liggen om de hoek. Het centrum van Amsterdam ligt op loopafstand. In de Helmersbuurt zijn tal van voorzieningen zoals scholen, kinderopvang, culturele uitgaansgelegenheden en openbaar vervoer. Via de Overtoom is er een goede ontsluiting naar Ringweg A10.

DE VERENIGING VAN EIGENAREN
Het pand is in februari 2021 met vergunning gesplitst en bestaat thans uit 5 appartementsrechten (allen woningen). De maandelijkse servicekosten bedragen circa € 83 per maand. De administratie van de VvE is in eigen beheer en er is thans geen meerjarenonderhoudsplan (MJOP) beschikbaar.

NENCLAUSULE
De gebruiksoppervlakte is berekend conform de branche vastgestelde NEN 2580-norm. De oppervlakte kan derhalve afwijken van vergelijkbare panden en/of oude referenties. Dit heeft vooral te maken met deze (nieuwe) rekenmethode. Koper verklaart voldoende te zijn geïnformeerd over de hiervoor bedoelde normering. Verkoper en diens makelaar doen hun uiterste best de juiste oppervlakte en inhoud te berekenen aan de hand van eigen metingen en dit zoveel mogelijk te ondersteunen door het plaatsen van plattegronden met maatvoering. Mocht de maatvoering onverhoopt niet (volledig) overeenkomstig de normering zijn vastgesteld, wordt dit door koper aanvaard. Koper is voldoende in de gelegenheid gesteld de maatvoering zelf te (laten) controleren. Verschillen in de opgegeven maat en grootte geven geen der partijen enig recht, zo ook niet op aanpassing van de koopsom. Verkoper en diens makelaar aanvaarden geen enkele aansprakelijkheid in deze.

OUDERDOMSCLAUSULE EN VERKLARING NIET-EIGEN BEWONING
Gezien het bouwjaar van het pand en het feit dat de woning wordt verkocht door een belegger zal de koopakte o.a. een ouderdomsclausule en een verklaring niet-eigen bewoning bevatten. Gezien de casco staat van het verkochte kan/wil verkoper geen garanties geven over de zich in de gebruikseenheid en/of de gemeenschappelijke gedeelte(n) bevindende technische installaties en aan- en afvoerleidingen en bedradingen – voor zover dienstbaar aan het verkochte. Tevens kan/wil verkoper geen garantie geven over de aanwezigheid van een aansluiting op de infrastructuur voor dataverkeer.

BIJZONDERHEDEN
– Unieke kans om jouw droomwoning te realiseren;
– Woonoppervlakte circa 59 m² (meetrapport beschikbaar);
– Zonnig balkon van circa 4 m² op het zuiden;
– Gelegen in de zéér gewilde Helmersbuurt om de hoek van het Vondelpark en het centrum van Amsterdam;
– Er is sprake van eigen grond;
– Het pand is in 2021 met vergunning gesplitst (thans 5 woningen);
– VvE in eigen beheer, maandelijkse servicekosten bedragen circa € 83;
– Ouderdoms-, asbest-, NEN-clausule, “as is where is” en verklaring niet-eigen bewoning zijn van toepassing;
– Projectnotaris Hartman LMH te Amsterdam.

Lees meerLees minder
Kenmerken
Overdracht
  • Status Beschikbaar
  • Aanvaarding In overleg
  • Vraagprijs € 525.000 k.k.
Indeling
  • Woonoppervlakte ± 59 m2
  • Aantal kamers 3
  • Aantal slaapkamers 2
  • Aantal woonlagen 1
Energie
  • Energielabel E
  • Energie einddatum 2028-01-25
Bouwvorm
  • Bouwjaar 1911
  • Soort bouw Appartement
  • Ligging Aan rustige weg, in woonwijk
Overig
  • Onderhoud binnen Matig
  • Onderhoud buiten Goed
  • Bijzonderheden Kluswoning
  • Permanente bewoning Ja
  • Huidig gebruik Woonruimte
  • Huidige bestemming Woonruimte
Kadastrale gegevens
  • Gemeente Amsterdam
  • Sectie Q
  • Eigendom Volle eigendom
  • Perceelnummer 9372
  • Index 6
Bekijk alle kenmerken Bekijk minder kenmerken
Plattegronden
Direct contact

Vul onderstaand formulier in en wij nemen zo snel mogelijk contact op.

    Contactgegevens