Geleenstraat 25 3
Heerlijk ruim dubbelbovenhuis (ca. 124m2) met 3 slaapkamers, 2 badkamers, 2 balkons en een uniek groot dakterras op het zuid/westen alwaar u de gehele dag zon heeft. De woning is… lees meer
- 124m²
- 3 slaapkamers
€ 995.000 ,- k.k.

Heerlijk ruim dubbelbovenhuis (ca. 124m2) met 3 slaapkamers, 2 badkamers, 2 balkons en een uniek groot dakterras op het zuid/westen alwaar u de gehele dag zon heeft. De woning is gelegen in de Rivierenbuurt op een rustige locatie en op loopafstand van gezellige terrassen, koffietentjes, winkels en restaurants. De erfpacht is eeuwig durend afgekocht!
Indeling:
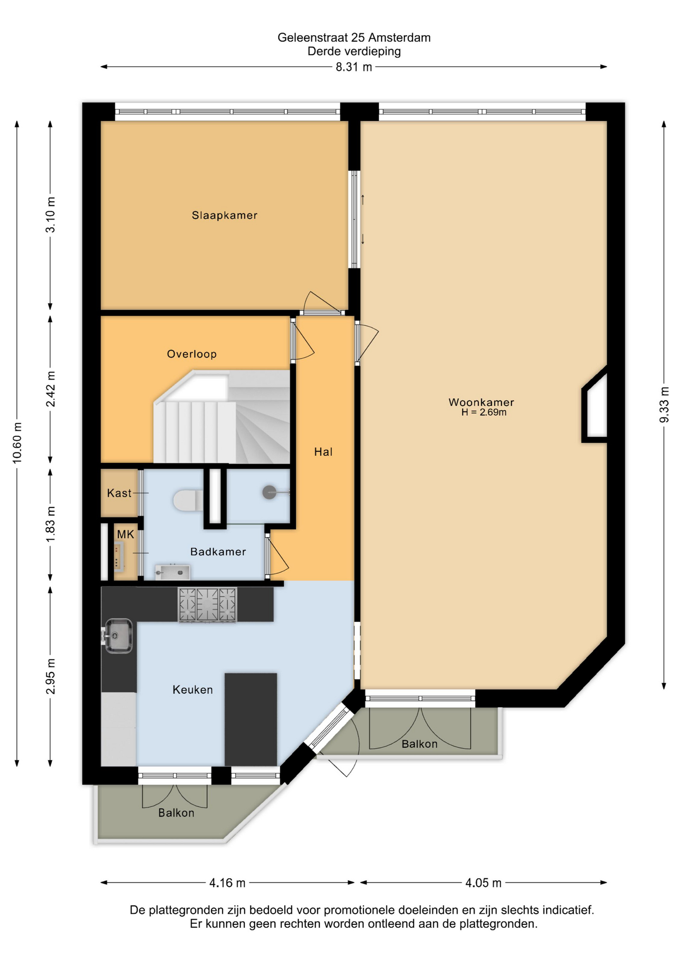
Tweede verdieping
Entree woning met trap naar de derde verdieping.
Derde verdieping
Hal, een moderne badkamer met een inloopdouche, wastafel, zwevend toilet en (weggewerkte) aansluiting voor wasmachine en droger. Een royale ouderslaapkamer aan de voorzijde. Een ruime woonkamer met een massief eiken…
Heerlijk ruim dubbelbovenhuis (ca. 124m2) met 3 slaapkamers, 2 badkamers, 2 balkons en een uniek groot dakterras op het zuid/westen alwaar u de gehele dag zon heeft. De woning is gelegen in de Rivierenbuurt op een rustige locatie en op loopafstand van gezellige terrassen, koffietentjes, winkels en restaurants. De erfpacht is eeuwig durend afgekocht!
Indeling:
Tweede verdieping
Entree woning met trap naar de derde verdieping.
Derde verdieping
Hal, een moderne badkamer met een inloopdouche, wastafel, zwevend toilet en (weggewerkte) aansluiting voor wasmachine en droger. Een royale ouderslaapkamer aan de voorzijde. Een ruime woonkamer met een massief eiken parketvloer en openslaande deuren naar het balkon aan de achterzijde, een half open luxe keuken met eiland en apparatuur te weten: koelkast, vriezer, vaatwasser en een Boretti gasfornuis met 6 pitten en twee ovens. Vanuit de keuken is er toegang tot een 2e balkon.
Vierde verdieping
Overloop/hal, 2e separate toilet, cv kast, ruime 2e slaapkamer met inbouwkasten en een keukenblok. In het midden is een 2e badkamer gesitueerd met een dubbele wastafel en een ligbad met douchegedeelte. De 3e slaapkamer met tevens kastruimte biedt toegang tot een zeer ruim, fraai aangelegd en beschut dakterras op het zuidwesten (met veel zon!). Boven beide slaapkamers bevindt zich een bergzolder bereikbaar middels een vlizotrap.
DE LOCATIE
De Maas- en Scheldestraat bieden een breed scala aan speciaalzaken (zoals Feduzzi), gezellige lunchspots (Coffee Company, Vinnies), restaurants (Vis aan de Schelde, The Traveller, Cantina L’Esquina) en ijssalons (Venetië en Pisa).
Voor ontspanning ben je zo in het groene Amstelpark, Beatrixpark of het sfeervolle Martin Luther Kingpark. De Zuidas is vlakbij en ook de bruisende wijk De Pijp, met haar talloze gezellige restaurants en cafés, ligt op loopafstand en biedt een levendige sfeer. Hier ervaar je het beste van twee werelden: rust en ontspanning in de directe omgeving, en de dynamiek van de stad om de hoek.
De buurt staat bekend om haar kindvriendelijkheid, met uitstekende opvangmogelijkheden, scholen, en volop speelplekken. De bereikbaarheid is uitstekend, met snelle verbindingen via de A-10 (afslag RAI en Amstel) en diverse tram-, bus-, en metrolijnen.
Er is ruim voldoende parkeergelegenheid voor de deur en u heeft recht op één parkeervergunning (Zuid 4.1 Rivierenbuurt Noord) met een huidige wachttijd van 2 maanden. Het NS-station Amsterdam RAI en de Noord-Zuidlijn zijn op korte loopafstand, waardoor je binnen enkele minuten in het centrum bent of snel de stad uit kunt. Kortom, een ideale locatie voor wie het beste van Amsterdam wil ervaren!
VERENIGING VAN EIGENAREN
Actieve Vereniging van Eigenaars ‘Geleenstraat 23-29/Dintelstraat 72-82 te Amsterdam.’ bestaande uit 18 leden. Het vastgoedbeheer wordt professioneel uitgevoerd door ‘VvE NL.’ Er wordt jaarlijks vergaderd en er is een Meerjarenonderhoudsplan. Het complex is in 2002 gesplitst in appartementsrechten. Dit appartementsrecht maakt 1/18e uit in de gemeenschap. De servicekosten bedragen vanaf 1 januari 2026 € 281,- per maand.
NENCLAUSULE
De gebruiksoppervlakte is berekend conform de branche vastgestelde NEN 2580-norm. De oppervlakte kan derhalve afwijken van vergelijkbare panden en/of oude referenties. Dit heeft vooral te maken met de (nieuwe) rekenmethode. Koper verklaart voldoende te zijn geïnformeerd over de hiervoor bedoelde normering. Verkoper en diens makelaar doen hun uiterste best de juiste oppervlakte en inhoud te berekenen aan de hand van eigen metingen en dit zoveel mogelijk te ondersteunen door het plaatsen van plattegronden met maatvoering. Mocht de maatvoering onverhoopt niet (volledig) overeenkomstig de normering zijn vastgesteld, wordt dit door koper aanvaard. Koper is voldoende in de gelegenheid gesteld de maatvoering zelf te (laten) controleren. Verschillen in de opgegeven maat en grootte geven geen der partijen enig recht, zo ook niet op aanpassing van de koopsom. Verkoper en diens makelaar aanvaarden geen enkele aansprakelijkheid in deze.
Erfpacht
De erfpacht is eeuwigdurend afgekocht!
Bijzonderheden
– Bouwjaar 1930
– Riant dakterras is met vergunning aangelegd in 2015
– Trappenhuis geschilderd in 2022
– Achterzijde is recent geschilderd
– Vierde verdieping is eventueel apart te verhuren (als volledig geëquipeerde woning)
– Oplevering in overleg, kan snel
Overdracht
- Status Beschikbaar
- Aanvaarding In overleg
- Vraagprijs € 995.000 k.k.
Indeling
- Woonoppervlakte ± 124 m2
- Aantal kamers 4
- Aantal slaapkamers 3
- Aantal woonlagen 2
- Aantal badkamers 2
- Badkamervoorzieningen Toilet, wastafel, inloopdouche, wasmachineaansluiting, ligbad, dubbele wastafel
Energie
- Energielabel C
- Isolatie Gedeeltelijk dubbel glas
- Verwarming Cv ketel
- Warm water Cv ketel
- C.V.-ketel type Gas
- C.V.-ketel bouwjaar 2015
- Energie einddatum 2035-06-17
Bouwvorm
- Bouwjaar 1930
- Soort bouw Appartement
- Ligging Aan rustige weg, in woonwijk, beschutte ligging
Overig
- Onderhoud binnen Goed
- Onderhoud buiten Goed
- Bijzonderheden Dubbele bewoning mogelijk, beschermd stads of dorpsgezicht
- Permanente bewoning Ja
- Huidig gebruik Woonruimte
- Huidige bestemming Woonruimte
Kadastrale gegevens
- Gemeente Amsterdam
- Sectie V
- Eigendom Eigendom belast met erfpacht
- Perceelnummer 10516
- Index A17



Vul onderstaand formulier in en wij nemen zo snel mogelijk contact op.