Utrechtsestraat 125 B
Wonen in het hart van Amsterdam in de gezellige Utrechtsestraat, omringd door diverse speciaalzaken, horeca en winkeltjes. Een appartement van circa 48 m² op de tweede verdieping wat nog naar… lees meer
- 48m²
- 2 slaapkamers
€ 400.000 ,- k.k.

Wonen in het hart van Amsterdam in de gezellige Utrechtsestraat, omringd door diverse speciaalzaken, horeca en winkeltjes. Een appartement van circa 48 m² op de tweede verdieping wat nog naar eigen wens te verbouwen en in te delen is. Gelegen op eigen grond en de fundering van het pand is vernieuwd/hersteld.
INDELING
Toegang tot de woning middels een gemeenschappelijk trappenhuis. Het trappenhuis is gedeeld met 3 woningen. Entree van de woning op de tweede verdieping.
Tweede verdieping
Dit appartement biedt een de perfecte gelegenheid om naar eigen wens te renoveren. Drie kamer appartement waarvan een badkamer. De…
Wonen in het hart van Amsterdam in de gezellige Utrechtsestraat, omringd door diverse speciaalzaken, horeca en winkeltjes. Een appartement van circa 48 m² op de tweede verdieping wat nog naar eigen wens te verbouwen en in te delen is. Gelegen op eigen grond en de fundering van het pand is vernieuwd/hersteld.
INDELING
Toegang tot de woning middels een gemeenschappelijk trappenhuis. Het trappenhuis is gedeeld met 3 woningen. Entree van de woning op de tweede verdieping.
Tweede verdieping
Dit appartement biedt een de perfecte gelegenheid om naar eigen wens te renoveren. Drie kamer appartement waarvan een badkamer. De voorkamer heeft veel lichtinval door de grote raampartijen aan de voorzijde. De ruime badkamer is voorzien van een douchecabine, een wastafel en een toilet. Realisatie van een keuken vereist aanpassing van de indeling en biedt u als koper de vrijheid heeft om de woning geheel naar uw eigen smaak en stijl te ontwerpen en te renoveren. Thans zal de warmwaterinstallatie en/of verwarming aangelegd moeten worden.
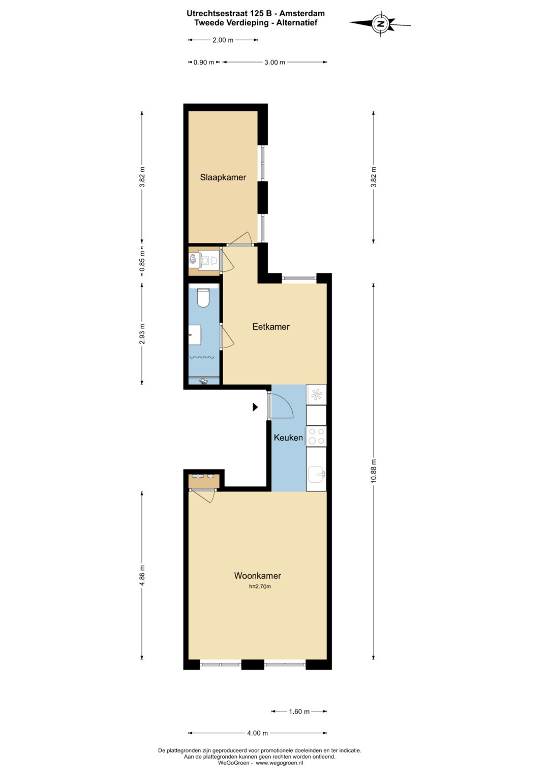
Graag verwijzen wij naar de alternatieve plattegrond voor een mogelijke indeling met 3 kamers.
De fundering van het pand is vernieuwd/hersteld.
DE LIGGING
Fraaie ligging in het centrum van de stad. De straat wordt omringd door de Amstel, het Amstelveld en het Frederiksplein. Het is een hooggewaardeerde woonlocatie voor velen, mede dankzij het diverse winkelaanbod en hoogwaardige horeca zoals restaurant Zoldering en De Juwelier. Het culturele aanbod is op loopafstand bereikbaar, met onder andere Carré, de Stopera, Pathé Tuschinski, het Concertgebouw en diverse musea zoals het Allard Pierson Museum, het Rijksmuseum en de Hermitage.
Uitstekende bereikbaarheid met het openbaar vervoer. Diverse trein/tram/bus (waaronder de Noord/Zuid lijn) verbindingen liggen op loop- en fietsafstand. Binnen een straal van 500 meter zijn er 3 parkeergarages te vinden; The Bank, Stadhuis-Muziektheater en Munthof.
DE VERENIGING
Het pand is in april 2020 met vergunning gesplitst in 2 appartementsrechten. In juli 2025 is de akte van splitsing gewijzigd naar 4 rechten bestaande uit een winkel en 3 (boven)woningen. Recentelijk is de VvE geactiveerd en de maandelijkse servicekosten zijn vastgesteld op circa € 164. Roco VvE Beheer is verantwoordelijk voor de administratie van de VvE.
NEN CLAUSULE
De gebruiksoppervlakte is berekend conform de branche vastgestelde NEN 2580-norm. De oppervlakte kan derhalve afwijken van vergelijkbare panden en/of oude referenties. Dit heeft vooral te maken met deze (nieuwe) rekenmethode. Koper verklaart voldoende te zijn geïnformeerd over de hiervoor bedoelde normering. Verkoper en diens makelaar doen hun uiterste best de juiste oppervlakte en inhoud te berekenen aan de hand van eigen metingen en dit zoveel mogelijk te ondersteunen door het plaatsen van plattegronden met maatvoering. Mocht de maatvoering onverhoopt niet (volledig) overeenkomstig de normering zijn vastgesteld, wordt dit door koper aanvaard. Koper is voldoende in de gelegenheid gesteld de maatvoering zelf te (laten) controleren. Verschillen in de opgegeven maat en grootte geven geen der partijen enig recht, zo ook niet op aanpassing van de koopsom. Verkoper en diens makelaar aanvaarden geen enkele aansprakelijkheid in deze.
OUDERDOMSCLAUSULE EN VERKLARING NIET-EIGEN BEWONING
Gezien het bouwjaar van het pand en het feit dat de woning wordt verkocht door een belegger zal de koopakte o.a. een ouderdomsclausule en een verklaring niet-eigen bewoning bevatten. Gezien de staat van het verkochte kan/wil verkoper geen garanties geven over de zich in de gebruikseenheid en/of de gemeenschappelijke gedeelte(n) bevindende technische installaties en aan- en afvoerleidingen en bedradingen – voor zover dienstbaar aan het verkochte. Tevens kan/wil verkoper geen garantie geven over de aanwezigheid van een aansluiting op de infrastructuur voor dataverkeer.
BIJZONDERHEDEN
– Unieke kans om jouw droomwoning te realiseren;
– Lichte (casco) bovenwoning van circa 48 m² (meetrapport beschikbaar);
– Fundering van het pand is hersteld/vernieuwd;
– Het pand is in april 2020 met vergunning gesplitst;
– Het pand is thans gesplitst in 4 appartementsrechten (1 winkelruimte en 3 woningen);
– Gelegen op eigen grond;
– VvE is onlangs geactiveerd. De maandelijkse VvE bijdrage is circa € 164;
– Professionele VvE beheerder Roco VvE Beheer;
– Ouderdomsclausule, asbestclausule, NEN-clausule, “as is where is” en verklaring niet-eigen bewoning zijn van toepassing;
– Projectnotaris Buma Algera Notariaat.
Overdracht
- Status Beschikbaar
- Aanvaarding In overleg
- Vraagprijs € 400.000 k.k.
Indeling
- Woonoppervlakte ± 48 m2
- Aantal kamers 3
- Aantal slaapkamers 2
- Aantal woonlagen 1
- Aantal badkamers 1
- Badkamervoorzieningen Toilet, douche, wastafel
Energie
- Energielabel F
- Energie einddatum 2035-10-07
Bouwvorm
- Bouwjaar 1800
- Soort bouw Appartement
- Ligging Aan drukke weg, in centrum
Overig
- Onderhoud binnen Matig tot redelijk
- Onderhoud buiten Redelijk tot goed
- Bijzonderheden Beschermd stads of dorpsgezicht, kluswoning
- Permanente bewoning Ja
- Huidig gebruik Woonruimte
- Huidige bestemming Woonruimte
Kadastrale gegevens
- Gemeente Amsterdam
- Sectie I
- Eigendom Volle eigendom
- Perceelnummer 12045
- Index 4



Vul onderstaand formulier in en wij nemen zo snel mogelijk contact op.