Beschikbaar

Van Ostadestraat 134 2

1072 te Amsterdam

Licht en praktisch ingedeeld 2-kamerappartement met balkon, gelegen op de tweede verdieping in de geliefde De Pijp. Gelegen op EIGEN GROND! Dit goed ingedeelde appartement bevindt zich op een… lees meer

  • 50m²
  • 1 slaapkamer

€ 445.000 ,- k.k.

/app/uploads/2023/11/DSC_6669-scaled.jpg
Omschrijving

Licht en praktisch ingedeeld 2-kamerappartement met balkon, gelegen op de tweede verdieping in de geliefde De Pijp. Gelegen op EIGEN GROND!

Dit goed ingedeelde appartement bevindt zich op een fijne locatie aan de Van Ostadestraat, op loopafstand van het Sarphatipark, de Albert Cuypmarkt en talloze cafés, restaurants en winkels. De woning beschikt over een ruime woonkamer, een aparte slaapkamer, een nette keuken en een balkon aan de achterzijde.

INDELING
Via het gemeenschappelijke trappenhuis bereik je de woning op de tweede verdieping.

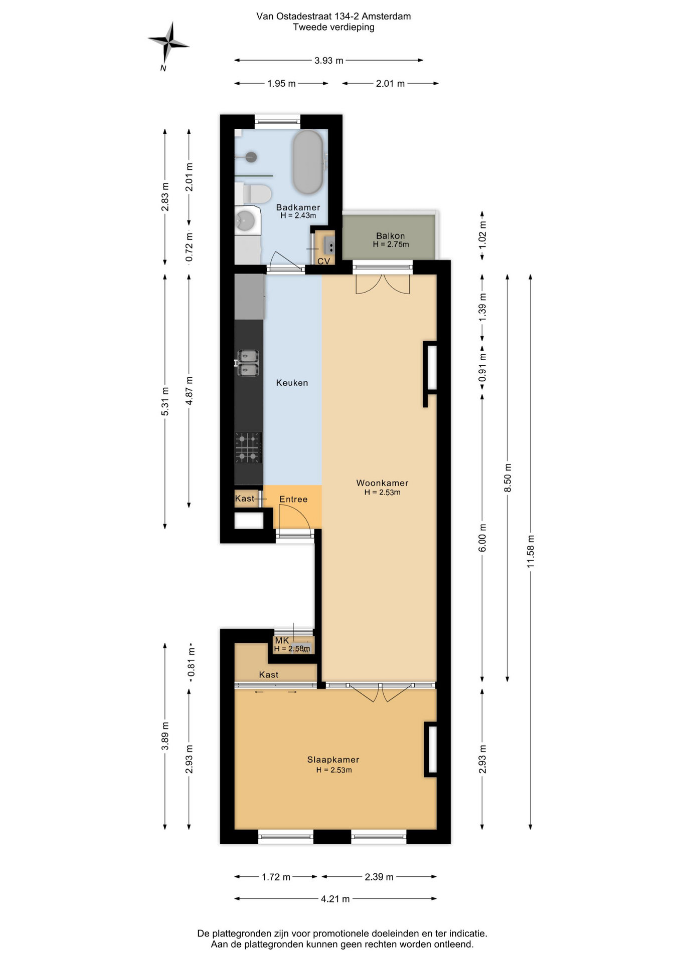
TWEEDE VERDIEPING
Aan de voorzijde van de woning bevindt zich de keuken, praktisch ingericht en voorzien…

Licht en praktisch ingedeeld 2-kamerappartement met balkon, gelegen op de tweede verdieping in de geliefde De Pijp. Gelegen op EIGEN GROND!

Dit goed ingedeelde appartement bevindt zich op een fijne locatie aan de Van Ostadestraat, op loopafstand van het Sarphatipark, de Albert Cuypmarkt en talloze cafés, restaurants en winkels. De woning beschikt over een ruime woonkamer, een aparte slaapkamer, een nette keuken en een balkon aan de achterzijde.

INDELING
Via het gemeenschappelijke trappenhuis bereik je de woning op de tweede verdieping.

TWEEDE VERDIEPING
Aan de voorzijde van de woning bevindt zich de keuken, praktisch ingericht en voorzien van diverse inbouwapparatuur. Vanuit de keuken/woonkamer is er toegang tot de badkamer, welke is uitgerust met een ligbad, wastafel, separate inloopdouche en toilet.

De woonkamer is royaal en licht dankzij de gunstige breedte en grote raampartijen. Vanuit de woonkamer heb je toegang tot het balkon aan de achterzijde.

Aan de voorzijde van de woning ligt de slaapkamer, van goed formaat en eveneens voorzien van grote ramen. Daarnaast beschikt de woning over meerdere vaste kasten, wat zorgt voor extra bergruimte.

Op de bovenste verdieping van het gebouw bevindt zich een separate berging van circa 2 m².

De kozijnen aan de achterzijde zijn vervangen in 2025.

DE OMGEVING
Het appartement is gelegen in het geliefde stadsdeel Zuid (voormalig Stadsdeel Oud-Zuid) in de stadswijk De Pijp. Op een paar minuten lopen van het appartement bevindt zich het schitterende Sarphatipark. Qua gezelligheid is dit appartement in het absolute hart van de Pijp gelegen, waarbij de ontelbare kroegen, terrassen en restaurantjes in de directe nabijheid te vinden zijn. De bereikbaarheid is uitstekend. Met het openbaar vervoer (div. tram- en busverbindingen, zoals lijn 3 en 12) bent u in korte tijd de stad in en uit. Met de auto is de ringweg A10 en A2 binnen enkele autominuten bereikbaar. Het station “De Pijp” van de Noord/Zuidlijn ligt om de hoek.

EIGEN GROND
De woning is gelegen op eigen grond, geen erfpachtcanon verschuldigd.

DE VERENIGING VAN EIGENAREN
De vereniging van eigenaar bestaat uit 4 leden. De vereniging spaart maandelijks. Er is een polis opstalverzekering en een kasstand. De maandelijkse service kosten bedragen €90,- per maand.

NENCLAUSULE
De gebruiksoppervlakte is berekend conform de branche vastgestelde NEN 2580-norm. De oppervlakte kan derhalve afwijken van vergelijkbare panden en/of oude referenties. Dit heeft vooral te maken met deze (nieuwe) rekenmethode. Koper verklaart voldoende te zijn geïnformeerd over de hiervoor bedoelde normering. Verkoper en diens makelaar doen hun uiterste best de juiste oppervlakte en inhoud te berekenen aan de hand van eigen metingen en dit zoveel mogelijk te ondersteunen door het plaatsen van plattegronden met maatvoering. Mocht de maatvoering onverhoopt niet (volledig) overeenkomstig de normering zijn vastgesteld, wordt dit door koper aanvaard. Koper is voldoende in de gelegenheid gesteld de maatvoering zelf te (laten) controleren. Verschillen in de opgegeven maat en grootte geven geen der partijen enig recht, zo ook niet op aanpassing van de koopsom. Verkoper en diens makelaar aanvaarden geen enkele aansprakelijkheid in deze.

BIJZONDERHEDEN
– Bovenwoning van circa 50 m²;
– Balkon op het zuiden van circa 2 m²;
– Een slaapkamer;
– Energielabel C;
– Dubbele beglazing;
– Fijne en centrale locatie;
– VvE in eigen beheer, 4 leden;
– Servicekosten €90 ;
– NEN clausule, een ouderdomsclausule en asbestclausule van toepassing;
– Projectnotaris Hartman LMH.

Lees meerLees minder
Kenmerken
Overdracht
  • Status Beschikbaar
  • Aanvaarding In overleg
  • Vraagprijs € 445.000 k.k.
Indeling
  • Woonoppervlakte ± 50 m2
  • Externe bergruimte ± 2 m2
  • Aantal kamers 2
  • Aantal slaapkamers 1
  • Aantal woonlagen 1
  • Aantal badkamers 1
  • Badkamervoorzieningen Ligbad, toilet, douche, wastafel, inloopdouche, wasmachineaansluiting
Energie
  • Energielabel C
  • Isolatie Dubbel glas
  • Verwarming Cv ketel
  • Warm water Cv ketel
  • C.V.-ketel type Gas
  • C.V.-ketel bouwjaar 2021
  • Energie einddatum 2033-03-31
Bouwvorm
  • Bouwjaar 1900
  • Soort bouw Appartement
Overig
  • Onderhoud binnen Goed
  • Onderhoud buiten Redelijk
  • Permanente bewoning Ja
  • Huidig gebruik Woonruimte
  • Huidige bestemming Woonruimte
Kadastrale gegevens
  • Gemeente Amsterdam
  • Sectie V
  • Eigendom Volle eigendom
  • Perceelnummer 9401
  • Index 6
Bekijk alle kenmerken Bekijk minder kenmerken
Plattegronden
Direct contact

Vul onderstaand formulier in en wij nemen zo snel mogelijk contact op.

    Contactgegevens